ПОРТФОЛИО
УСЛУГИ
О НАС
КОНТАКТЫ
PDF | RU
PDF | EN
ПОРТФОЛИО
УСЛУГИ
О НАС
КОНТАКТЫ
PDF | RU
PDF | EN
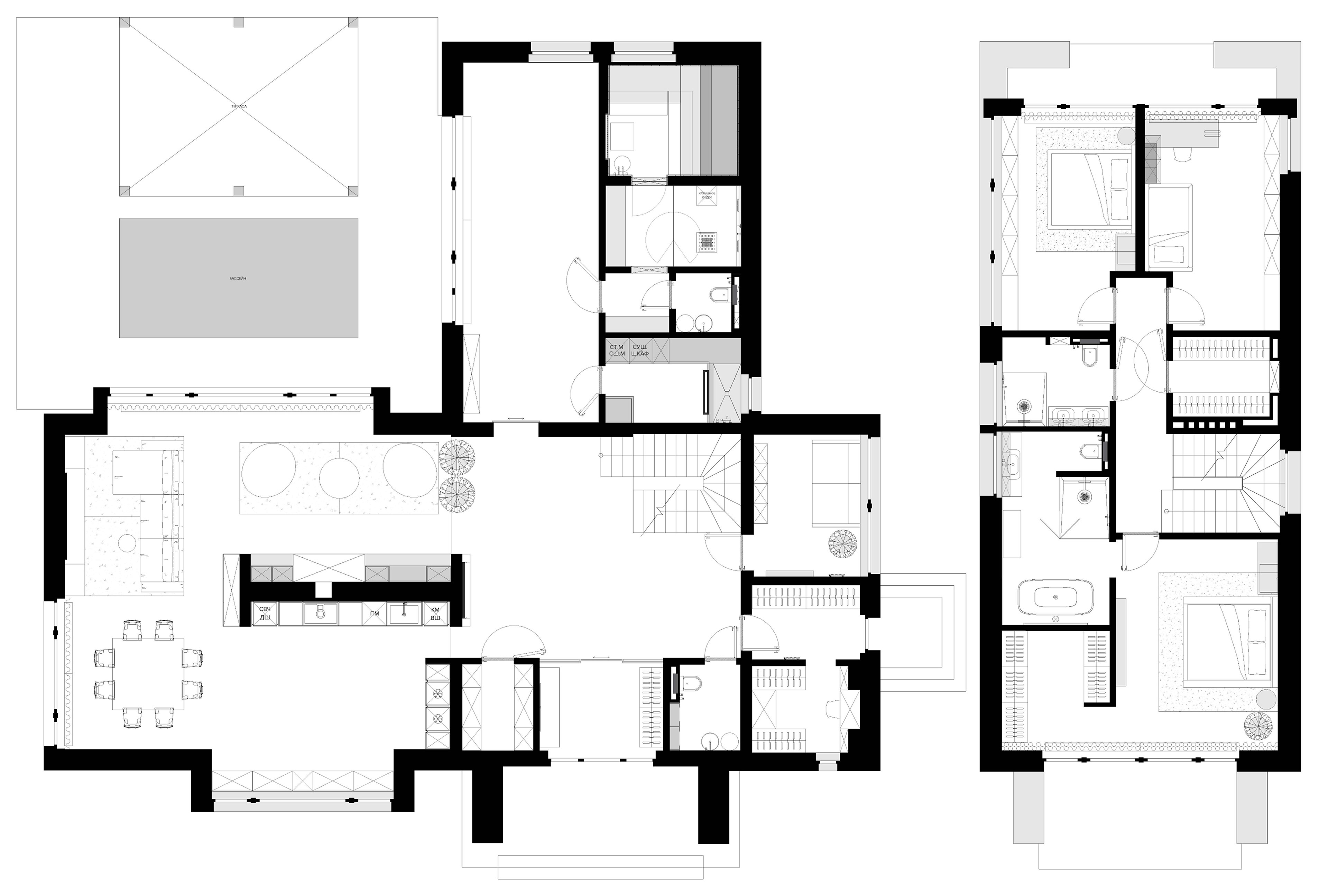
JEMI STUDIO
HOUSE ON THE LAKE
ГОД | 2022
ЛОКАЦИЯ | РОССИЯ, ЛЕНИНГРАДСКАЯ ОБЛАСТЬ
СТАДИЯ | РЕАЛИЗОВАННО
ХОЛЛ
ТАМБУР
ГОСТИНАЯ
КУХНЯ
СПОРТИВНЫЙ ЗАЛ
КАБИНЕТ / ЗОНА КУБКОВ И НАГРАД
ЗОНА СПА
МАСТЕР БЛОК
Хотите, чтобы мы спроектировали пространство, которое станет вашим состоянием?
Напишите нам!
TELEGRAM
↑
Back to Top